Importance of MEP Shop Drawings for Construction Project Success
The building design and construction process is an amalgamation of various complex systems and processes for its successful and satisfactory completion. MEP (Mechanical, Electrical, and Plumbing) systems are one of these systems that play a critical role in a building’s functionality.

MEP shop drawings are a stepping stone for the successful installation of MEP systems, making Shop Drawing services a significant part of the whole process. These services ensure the availability of detailed information about the fabrication and installation of MEP systems with the stakeholders during all stages.
Shop drawing services facilitate a seamless fabrication, assembly, installation, and maintenance of the MEP system of the built form. The 2021 industry study suggests a surge in the MEP market at a compound growth rate of 16% between 2020–2024. MEP components are crucial for every project, irrespective of the project type and design, forming the backbone of the construction industry.
What are MEP Shop Drawings?
Shop drawings are detailed diagrams that provide information about the Mechanical, Electrical, and Plumbing systems and their installations of a building.
These drawings are created by MEP engineers and used by architects, designers, and contractors to coordinate design, fabrication, and site execution. The drawings ensure that all components are skillfully procured and installed as per building standards and codes.
The accuracy and precision of MEP shop drawings ensure that the cost and performance of a project are maximized. Generating MEP shop drawings is a crucial step in the design process to avoid a chaotic installation process. The drawings entail critical information about materials, equipment details, and installation procedures, significant to the construction process.
Read More : A Comprehensive Guide for HVAC Duct Shop Drawings
Shop drawing services are a way of ensuring that the project is constructed as per the agreed specifications gradually enhancing coordination among stakeholders. MEP shop drawings are generated typically in two different forms.
The details and information included in each set of drawings are as follows:
Mechanical Shop Drawing
These drawings entail the specifications and location of HVAC (Heating, Ventilation, and Air Conditioning) systems. The information is inclusive of details about installing and fabricating ducts, customized piping, and air-handling units.

Mechanical drawings also represent transportation systems like lifts, escalators, industrial, and infrastructural components.
Electrical Shop Drawing
The electrical shop drawings depict electrical systems including power supply, control and security systems, distribution, access, information and communication systems, and interior-exterior lighting.

Building contractors can evaluate accurate electrical layouts with comprehensive shop drawings, eliminating the possibility of overlap of electrical and mechanical systems.
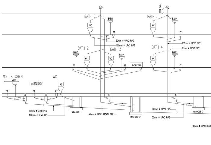
Plumbing Shop Drawing
Plumbing shop drawings include piping layouts, drainage system details, and garbage disposals. These drawings specify both fluid and air transport for heating & cooling, fuel gas piping, waste removal system, and potable & non-potable water supply.

High-quality MEP drawings ensure the accuracy of component dimensions and retain the ability to address potential errors or clashes.
Benefits of MEP Shop Drawing Services
Shop Drawing services are a crucial resource for the project stakeholders and the client for smooth execution and future maintenance of the project. Here are a few of the many benefits MEP shop drawings have to offer:
1.Facilitate Seamless Project Management
2.Develop Detailed Cost Estimates and Minimize Project Costs
3.Provide Accuracy and Clarity
4.Easy in-Built Project Documentation
5. Reduces Conflicts and Errors
Conclusion
A successful project outcome can be pertained to implementing clear processes and procedures by AEC professionals. MEP Shop drawings are not only significant for the construction process, but also determine the success of the project even after construction.
Comments
Post a Comment